Uncategorized

7畳・8畳1Kのレイアウト比較|デスク派とくつろぎ派

7畳・8畳の1Kでくつろぎを重視したレイアウト例(リビングスペース)

引っ越しや模様替えを機に家の中をオシャレにしたいと考えているけどどうしていいのかわからない。
そんなお悩みをお持ちの方に役立つポイントをお伝えします。
今回は1Kのお部屋をモデルにおしゃれで使いやすい空間づくりを皆さんにお伝えしていきます。

7畳・8畳の1Kレイアウトで悩む人が多い理由

ではまず初めに、なぜ1Kのレイアウトを考える際に悩む方が多いのかについてお話しします。

7畳〜8畳の1Kでは、生活に必要な家具や機能をすべて同じ空間にまとめる必要があるため、「どう配置すればいいんだろう」と感じたことがある方も多いのではないでしょうか。

・活動・食事・睡眠の距離が近く、空間を分けにくい
・家具サイズの想定違いで、一気にスペースがなくなる
・間取り図だけでは、実際の生活イメージがしにくい

今回の記事では、こうした悩みに対して、どのように考えればレイアウトを整理しやすくなるのか、その考え方をお伝えしていきます。

今回の記事で紹介するレイアウトの前提条件

今回の記事では、1Kの部屋における居室部分のレイアウトに焦点を当てて考えていきます。
そのため、玄関からの動線や水回りの配置については、今回の検討には含めていません。

比較する部屋の条件としては、下記の2タイプを想定しています。
・長方形の空間が確保しやすい8畳の部屋
・一部に凹凸があり、空間が雁行する7畳の部屋

また、それぞれの部屋について
「デスクワークやゲームを中心に使いたい人」
「映画鑑賞など、家ではゆっくりくつろぎたい人」
という2つの生活スタイルを想定し、合計4パターンの家具配置例を紹介します。

ここでお伝えしたいのは、「この配置をそのまま真似すれば正解」ということではありません。
それぞれの条件の中で、どのような考え方をすれば使いやすいレイアウトに近づくのか、その視点を共有することを目的としています。

1Kをすっきり見せるために
共通して意識したい2つの考え方

今回紹介するレイアウトには、すべてに共通して意識している考え方があります。

・部屋の中の動線を意識する
・入り口からの視線の通りを確保する

1Kのようなコンパクトな空間では、家具の数やデザイン以上に
「どう歩くか」「どこまで見えるか」 が、部屋の印象を大きく左右します。

動線が確保されていると、日常の移動がスムーズになり、生活していて窮屈さを感じにくくなります。

また、入り口から見たときに視線が奥まで抜けていると、実際の広さ以上に部屋を広く感じやすくなります。

これから紹介するレイアウトは、どれもこの2つの考え方をベースに配置を考えています。

作業効率を優先したい人向け
デスク主体のレイアウトの考え方

家で在宅ワークをする方や資格勉強をする方、ゲームが好きな方に向けた、デスクを主役にしたレイアウトです。

デスクに向かって過ごす時間が長い場合は、家具を個別に考えるのではなく、「デスクを中心に部屋全体をどう使うか」という視点でレイアウトを考えることが重要になります。

このレイアウトでは、作業をする場所と休む場所をできるだけ分けるため、ベッドとデスクの距離を意識的に離すことをポイントとしています。

作業スペースと休息スペースが近すぎると、オンとオフの切り替えが難しくなり、生活リズムが乱れやすくなるためです。

これから紹介する7畳・8畳それぞれのレイアウト例では、この考え方をベースに、広さや形状の違いによる工夫を見ていきます。

7畳では「配置を固定する」ことで作業スペースを確保する

7畳 1K デスク レイアウト パース

7畳では、使える余白が限られるため、「どこを固定するか」を最初に決めることが重要になります。

このレイアウトでは、ベッドを部屋の奥側に配置し、入口側を活動スペースとしてまとめています。

部屋に入ったときにまず目に入るのがデスクになることで、自然と作業モードに切り替えやすくなります。

7畳の場合、配置の自由度は高くありませんが、その分「何を優先する部屋なのか」を明確にすると、窮屈さを感じにくくなります。

8畳では余白を残し、使い方を後から決める余地をつくる

8畳 1K デスク レイアウト パース
8畳 1K デスク レイアウト 平面図
※ 家具配置の考え方を整理した平面図(参考)

8畳になると、同じ家具構成でも選択肢が一気に増えます。

このレイアウトでは、あえてベッドを入口側に配置し、部屋の奥に余白を残しています。

クローゼット前に十分なスペースがあるため、動線を妨げにくく、圧迫感も出にくいのが特徴です。

奥側の余白は、収納を増やしたり、趣味スペースにしたりと、住む人に合わせて調整できます。

8畳では「完成形を決めすぎない」ことも、レイアウトの考え方のひとつです。

家では休む時間を大切にしたい人向け
くつろぎ主体のレイアウト

普段は家の外で働いていて、休みの日も外出することが多い。
だからこそ、家にいる時間はできるだけ何も考えず、ゆっくり過ごしたい。
そんな方に向けたのが、この「くつろぎ主体」のレイアウトです。

このレイアウトでは、作業効率よりも居心地の良さを優先して考えています。
デスクに向かって何かをする時間は最小限にし、部屋の中でリラックスして過ごす時間を主役にする考え方です。

ベッドは「寝るための家具」としてだけでなく、背もたれや簡易的なソファーのように使える存在として捉えています。
壁付けに配置することで、部屋の中央に余白をつくり、床に座ったり、足を伸ばしたりと、その日の気分に合わせた過ごし方ができる空間を目指しています。

また今回紹介するレイアウトでは、7畳・8畳それぞれで、ベッドの位置をデスク主体のレイアウトと同じ位置に設定しています。
用途だけを変えたときに、空間の印象や過ごしやすさがどう変わるのかを、ぜひ比較しながら見てみてください。

「どちらが正解か」ではなく、「自分はどちらの過ごし方が心地いいか」 を考えるきっかけになればと思います。

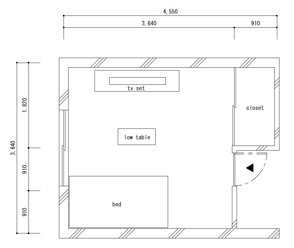
7畳では動線をまとめ、くつろぎ空間を奥に集約する

7畳 1K くつろぎ レイアウト パース

7畳の部屋では、限られた広さの中で「くつろぎ」と「移動のしやすさ」をどう両立するかがポイントになります。
このレイアウトでは、入り口側に動線をまとめ、奥側にくつろぐための空間とベッドを集約しています。

くつろぐエリアと寝るエリアをひとつのまとまりとして配置することで、部屋の使い方が直感的になり、生活の動きが散らかりにくくなります。
また、入り口から奥までの移動経路をしっかり確保することで、7畳でも窮屈さを感じにくいレイアウトになっています。

スペースに余裕がない分、「何を置かないか」「どこまでをくつろぎ空間とするか」を明確にすることが、
7畳で快適に過ごすためのポイントです。

8畳では余白を活かし、くつろぎ方を自由に広げる

8畳 1K くつろぎ レイアウト パース
8畳 1K くつろぎ レイアウト 平面図
※ 家具配置の考え方を整理した平面図(参考)

8畳の部屋では、7畳と比べて空間に少し余裕があるため、レイアウトに“遊び”や“余白”を持たせることができます。

このレイアウトでは、デスク主体の配置と同様に、クローゼット前にあえて余剰スペースを確保しています。
このスペースは使い方を固定せず、住む人のライフスタイルに合わせてカスタムできる余地として残しています。

ライフスタイルに合わせたカスタムの例
・くつろぎ空間をさらに広げて床座中心にする
・ラグや照明、観葉植物を追加して雰囲気づくりを楽しむ
・収納や小さな家具を置いて機能性を高める

上記のように、同じ8畳でも過ごし方に合わせた調整が可能です。

7畳では「まとめる」ことが重要だったのに対し、8畳では「どう余白を使うか」がレイアウトの楽しさにつながります。

7畳と8畳の違いから見える
1Kレイアウトの考え方まとめ

7畳・8畳どちらのレイアウトでも、考え方のベースは共通しています。

変わらないこと

  • 動線と視線の通りを意識することで、部屋はすっきりと感じやすくなる
  • ベッドやデスク、テレビボードなどの大きな家具を壁際に寄せることで、人が行動するための空間を広く確保できる

まずはこの2点を押さえるだけでも、レイアウトの失敗は大きく減らせます。

変わること

  • 7畳では「本当に必要なものは何か」を考え、最小限の構成を意識することで、圧迫感の出にくい空間をつくることができる
  • 8畳では、7畳での考え方をベースにしつつ、ワンポイントの工夫を加えることで、個性を出しながらも狭く感じにくい部屋づくりが可能になる

7畳は「取捨選択」、8畳は「余白の使い方」。
同じ1Kでも、考え方を少し変えるだけで、過ごしやすさは大きく変わります。

ABOUT ME
若潮 ルカ
建築士として住まいや空間づくりに携わってきた経験を活かし、暮らしを整えるための家具やインテリア情報を発信しています。使い心地・デザイン・レイアウトの視点から「永く使える家具」だけを厳選してご紹介。 一人暮らしや新生活を始めた方の家具選びに、少しでもお役に立てたらうれしいです。
CTAサンプル

これはCTAサンプルです。
内容を編集するか削除してください。